JOSEPH GIAMPIETRO

BUILDINGS

OBJECTS

PHOTOGRAPHS

SOUNDS

WRITINGS

INFORMATION

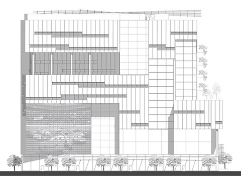
The headquarters is incorporated into a larger masterplan to revitalize Pittsburgh’s cultural district via implementing mixed-use residences, several shops, and multiple culturally centric buildings. The headquarters is designed to foster 24 hour public activity and is adjacent to several unique neighborhoods expressed within the masterplan as urban living rooms. The building’s ground level and exterior plaza is holistically conceived and provides retail space, unique amenities and a variety of street-level uses to enrich local quality and character.

 

One emphasis of the project was towards sustainability, both as functioning design component as well as providing cultural awareness to the state of green and sustainable design today. As a response to this, an onsite living machine passively recycles greywater through the use of plants and public accessible wetlands. The living machine is integrated into the buildings urban plan to inform pedestrians about sustainable processes through experience and interaction. The building’s exterior skin consists primarily of translucent polycarbonate panels that provide diffused light to interior offices. Between each panel, are discrete energy-generating wind belts. Horizontal strips of glass interrupt the polycarbonate panels to allow direct daylight and ventilation to the offices. On the north, south and west facades, a metal LCD mesh can display images or video for exterior public movie screenings or advertisements. While the upper floors contain office space, the ground floor provides retail space and a lively interior and exterior public space. Sustainability, awareness, and efficiency were primary goals for this studio. This project was developed with collaboration with consultants on a weekly basis and optimized according to BOMA standards.

PIXAR / 3M HEADQUARTERS

 

PITTSBURGH, PENNSYLVANIA

KENT STATE UNIVERSITY

CRITIC. CHARLES HARKER

PARTNER. LYNN RABATSKY

2012

 

COMPETITION FINALIST

AXONOMETRIC SECTION

BUILDING SECTION

GROUND FLOOR PLAN

CONNECTION DETAILS

EXTERIOR PUBLIC SPACE

ABOUT

 

 

JOSEPH GIAMPIETRO IS A DESIGNER LIVING AND WORKING IN NEW YORK CITY

 

JOSEPH IS A GRADUATE OF THE UNIVERSITY OF PENNSYLVANIA SCHOOL OF DESIGN WITH A MASTER DEGREE IN ARCHITECTURE

 

FREELANCE PHOTOGRAPHER /

SOUND DESIGNER / AUDIO ENGINEER

HISTORY

 

 

HIRSUTA

COMPETITION TEAM

2017

 

PRATT INSTITUTE

VISITING ASSISTANT PROFESSOR - BRUCE MAU

2017 - PRESENT

 

UNIVERSITY OF PENNSYLVANIA

LECTURER - ROBERT STUART-SMITH

LECTURER - GEORGINA HULJICH

2014 - PRESENT

 

DAVID JAY WEINER ARCHITECTS

JUNIOR ARCHITECT

2016 - PRESENT

 

IBANEZKIM

PHOTOGRAPHER / SOUND DESIGNER

2016

 

UNIVERSITY OF PENNSYLVANIA

MASTER OF ARCHITECTURE

EMERGING DESIGN + RESEARCH CERTIFICATE

2013-2016

 

SU11 ARCHITECTURE + DESIGN

COMPETITION TEAM

2015

 

STOKES ARCHITECTURE

INTERN

2014

 

OLSAVSKY JAMINET ARCHITECTS

INTERN

2013

 

KENT STATE UNIVERSITY

COLLEGE OF ARCHITECTURE + ENVIRONMENTAL DESIGN

BACHELOR OF SCIENCE IN ARCHITECTURE

2008-2012

CONTACT

 

 

JOSEPH.M.GIAMPIETRO@GMAIL.COM

CV

© 2017 JOSEPH GIAMPIETRO

EMAIL

 

 

INSTAGRAM